161 Anniston Ct.
- 2 beds
- 2 baths
- 880 sq ft
- FOXFIRE
- Derby
$230,300
Basics
- Bedrooms: 2
- Bathrooms: 2
- Half baths: 0
- Area: 880 sq ft
- Year built: 2025
- Subdivision: Foxfire
- GarageSpaces: 3
- MLS ID: SCK655628
Description
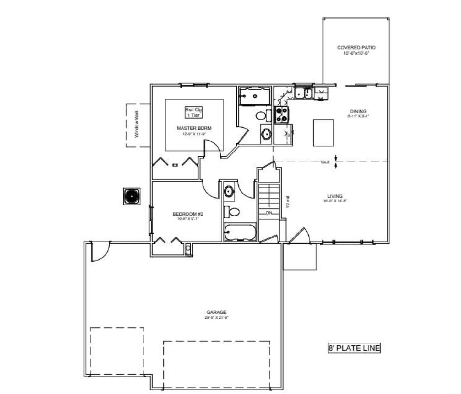
- Description: Treat yourself to a new home for the fall! Nestled in a serene neighborhood on a quiet cul de sac on the outskirts of Derby, this popular 2-bed, 2-bath Willow plan boasts an inviting openness with vaulted ceilings that blends comfort and style. The heart of the home features a bright and airy living room, kitchen, and dining area with vaulted ceilings and large windows for lots of natural light. The kitchen is equipped with an island, eating bar, and quartz countertops. The master bedroom features a vaulted ceiling and its own, private bath. Enjoy the covered back patio for relaxing outdoors, rain or shine! The full, unfinished daylight basement is framed for a third bedroom, a third bath, and a rec room. The 3-car garage offers plenty of space for vehicles and extra storage. Sales price includes sod and sprinkler system. Conveniently located in the desirable Derby school district near shopping, dining, and parks, this home offers the perfect balance of tranquility and accessibility. Don’t miss the chance to make this beautiful house your new home! General taxes, special assessments, HOA fees, room sizes, & lot sizes are estimated. All school information is deemed to be accurate, but not guaranteed. Plan features may change without notice.
Building Details
- Builder: Comfort Homes, Inc.
- Approximate Age: Under Construction
- Architectural Style: Ranch
- Heating: Forced Air, Natural Gas
- Basement: Unfinished
- Roof: Composition
Amenities & Features
- Cooling: Central Air, Electric
- CommunityFeatures: Sidewalks, Greenbelt
- Utilities: Sewer Available, Natural Gas Available, Public
Location
- CountyOrParish: Sedgwick
- Directions: From 55th St S & Rock Rd, west on 55th past Woodlawn to Forest Park, south to Anniston Ct, west to home.
- City / Department: Derby